One bedroom apartment, Sale, v Starom Meste, Bratislava
The Home real estate agency offers for sale new 1,5- room apartment in the METROPOLIS project in Bratislava's "downtown". It is located on the 8th floor out of a total of 18 in building A. The project is freshly approved and the apartment offers the new owner the possibility of furnishing according to his ideas.
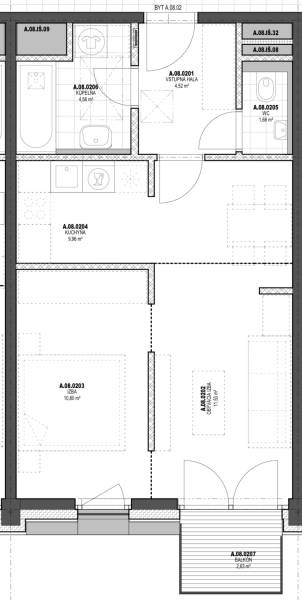
It has a total area of 48.83 m2 (apartment 43.03 m2 + loggia 2.63 m2 + cellar 3.17m2). The apartment is made to a high standard - ceiling cooling and heating, laminate floors with a wooden tread layer, rebateless interior doors with hidden hinges, porcelain tiles, air recuperation, fully furnished sanitary, exterior shading, preparation for a smart home.
Layout - entrance hall, bathroom with bathtub and sink, separate, separate kitchen, living room, bedroom separated from living room. From the living room there is an exit to the loggia. The orientation is to the south and offers views of the newly emerging "downtown" of Bratislava and the surrounding park.
Metropolis is located in the very heart of Bratislava's downtown. It is located at the touch of Bottova Street with Chalupkova Street, thanks to which it has a strategic location, whether it is a transition towards the historic center, bus station, embankment or Ružinov. However, the essential thing is in the interior of the building. The resident is confronted with a high level at the entrance. Each of the two entrances contains a 24-hour reception, delivery boxes and concièrge services. The material design in the form of large-format cladding gives the space a representative look.
The price of an apartment is 280,000 euros + an underground garage space at a price of 40,000 euro + storage right next to parking space for 10,000 euro.
Owner is a company and all prices are include VAT.
Listing summary
Property location
Bottova, Bratislava - Staré Mesto, Slovakia

